Datos
- N° ref.: TF03717
- Tipo de propiedad: Terreno urbano
- Amueblado: No
- Estado: Como nuevo
- Piscina: No
- Ciudad: Icod de los Vinos
- Altitud sobre nivel del mar: 290 m
- Parcela: 1.100 m²
- Superficie construida: 0 m²
- Salón: 0
- Dormitorio: 0
- Cuarto de baño: 0
- Precio de compra: 145.000 €
Descripción del inmueble
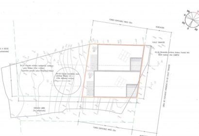
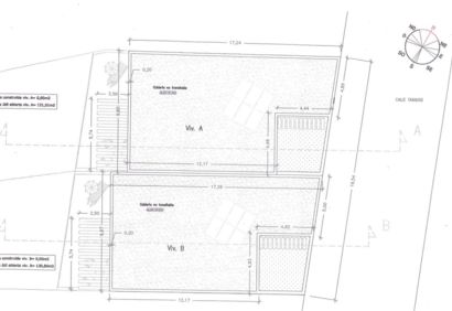
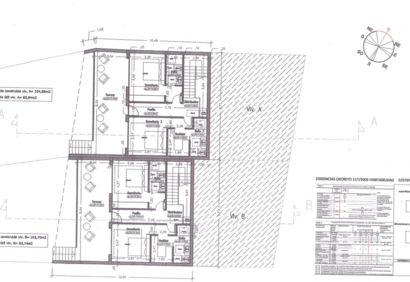
Parcela edificable en el casco urbano de Icod de los Vinos con proyecto de edificación existente y aprobado para la construcción de dos viviendas pareadas. La parcela está situada muy tranquila al final de un callejón sin salida con buen acceso y tiene una vista sin obstáculos del Atlántico y la costa. Por supuesto, la parcela también se puede edificar con una vivienda unifamiliar aislada.









